物件詳細お気に入り物件
東京都板橋区富士見町 6980万円 ~ 7980万円
富士見町 6,980・7,980万円
全4棟・販売3棟
全4棟・販売3棟

外観

2号棟

3号棟

4号棟
※指でスライドすると写真が切り替わります。
■この物件のポイント
2路線3駅利用可!
閑静な住宅街の富士見町!
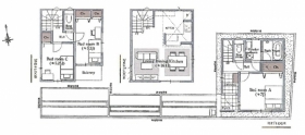
1・2号棟は3階建て4LDK!
4号棟は3階建て3LDK!
2路線3駅利用可!
閑静な住宅街の富士見町!
1・2号棟は3階建て4LDK!
4号棟は3階建て3LDK!
| 所在地 | |||||
|---|---|---|---|---|---|
| 交通 | 東武東上線 『ときわ台』駅 徒歩11分 /東武東上線 『中板橋』駅 徒歩11分 /都営三田線 『板橋本町』駅 徒歩13分 | ||||
| 価格 | 6980万円 ~ 7980万円 | ||||
| 坪単価 | - | ㎡単価 | - | ||
| 駐車場 | 敷地内に有(1台分) | ||||
| 間取り | 4LDK | 間取り詳細 | 4号棟:3LDK | ||
| 建物面積 | 82.00㎡ ~ 120.28㎡ | 土地面積 | 65.00㎡ ~ 74.04㎡ | ||
| 種別 | 新築一戸建て | 構造 | 木造 | ||
| 完成月 | 2026年1月 | 引渡し | 相談 | ||
| 土地権利 | 所有権 | ||||
| 総戸数 | - 戸 | 販売戸数 | 3 戸 | ||
| 借地料 | - 円 | ||||
| 都市計画 | - | 用途地域 | 第一種住居地域 | ||
| 地目 | - | 地勢 | - | ||
| 接道状況 | 西約5m | ||||
| セットバック | - | ||||
| 私道負担面積 | - | 主要採光面 | 西 | ||
| 建ぺい率 | 60% | 容積率 | 300% | ||
| 設備 | 追焚機能付/浴室乾燥機/洗髪洗面化粧台/温水洗浄便座(ウォシュレット)/トイレ:2室/床暖房/クローゼット/システムキッチン/対面式キッチン/フローリング/全居室フローリング/バルコニー/TVモニタ付インタホン/ペアガラス/公営水道/都市ガス/下水道 | ||||
| 条件 | - | ||||
| 備考 | - | ||||
| お問合せ番号 | - | ||||
| 取引形態 | 仲介 | 業者付け | - | ||


