東京都練馬区北町6丁目の物件詳細
北町6丁目 8,690万円
限定1棟
平和台駅徒歩6分のアクセス良好な立地に限定1棟です。
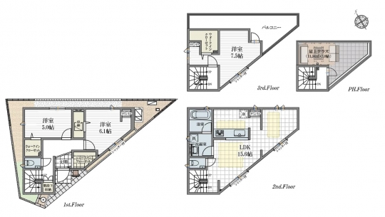
3階建て3LDKの間取りでルーフバルコニーも付いています。豊富な収納力も魅力です。
休日はもちろん平日のご案内も承っておりますので、お気軽にお問い合わせください。
-
-
最寄り駅 徒歩 住所 |
価格 |
面積 間取り |
種別 完成月 |
東京メトロ有楽町線 『平和台』駅 徒歩6分
東京都練馬区北町6丁目
|
8690万円 |
建:95.64㎡
土:58.03㎡
間取り:3LDK |
新築一戸建て
2026年3月 |
03-5916-0485
【営業時間】
平日 9:30~19:30、土日祝 9:00~19:30 毎週水曜日、第1・3・5火曜日

| 所在地 |
東京都練馬区北町6丁目  |
| 交通 |
東京メトロ有楽町線 『平和台』駅 徒歩6分
/東京メトロ副都心線 『平和台』駅 徒歩6分
|
| 価格 |
8690万円 |
| 駐車場 |
- |
| 間取り |
3LDK |
建物面積/土地面積 |
建:95.64㎡ 土:58.03㎡ |
間取り詳細 |
- |
| 種別/構造 |
新築一戸建て/木造 |
完成月 |
2026年3月 |
引渡し |
相談 |
| 総戸数/販売戸数 |
- 戸/1 戸 |
土地権利 |
所有権 |
| 借地料 |
- 円 |
都市計画 |
- |
用途地域 |
第一種中高層住居専用地域 |
| 地目 |
- |
地勢 |
- |
| 接道状況 |
西約8m・南約4m |
| セットバック |
- |
私道負担面積 |
- |
主要採光面 |
南 |
| 建ぺい率 |
60% |
容積率 |
200% |
| 設備 |
追焚機能付/浴室乾燥機/洗髪洗面化粧台/温水洗浄便座(ウォシュレット)/トイレ:2室/床暖房/クローゼット/ウォークインクローゼット/システムキッチン/対面式キッチン/フローリング/全居室フローリング/バルコニー/ルーフバルコニー/TVモニタ付インタホン/ペアガラス/公営水道/都市ガス/下水道 |
| 条件 |
- |
| 備考 |
- |
| お問い合わせ番号 |
- |
取引形態 |
仲介 |
※各種情報と現状に差異がある場合は、現状優先となります。