東京都板橋区大谷口1丁目の物件詳細
大谷口1丁目 7,980万円
限定1棟

千川駅徒歩9分・大山駅徒歩15分のアクセス良好な立地に限定1棟です。
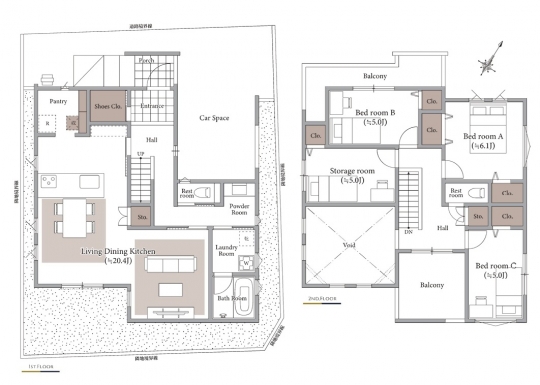
ゆったりとした2階建て4LDKでリビング上部には吹き抜けを設け開放感あふれる空間になっています。
休日はもちろん平日のご案内も承っておりますので、お気軽にお問い合わせください。
-
-
-
3路線2駅利用可!
大型2階建て4LDK!
水回り集中設計!
足元ぽかぽか床暖房付!
最寄り駅 徒歩 住所 |
価格 |
面積 間取り |
種別 完成月 |
東京メトロ有楽町線 『千川』駅 徒歩9分
東京都板橋区大谷口1丁目
|
7980万円 |
建:128.78㎡
土:125.61㎡
間取り:4LDK |
新築一戸建て
2026年7月 |
03-5916-0485
【営業時間】
平日 9:30~19:30、土日祝 9:00~19:30 毎週水曜日、第1・3・5火曜日

| 所在地 |
東京都板橋区大谷口1丁目  |
| 交通 |
東京メトロ有楽町線 『千川』駅 徒歩9分
/東武東上線 『大山』駅 徒歩15分
|
| 価格 |
7980万円 |
| 駐車場 |
敷地内に有(1台分) |
| 間取り |
4LDK |
建物面積/土地面積 |
建:128.78㎡ 土:125.61㎡ |
間取り詳細 |
- |
| 種別/構造 |
新築一戸建て/木造 |
完成月 |
2026年7月 |
引渡し |
相談 |
| 総戸数/販売戸数 |
- 戸/1 戸 |
土地権利 |
旧法賃借権 |
| 借地料 |
- 円 |
都市計画 |
- |
用途地域 |
第一種中高層住居専用地域 |
| 地目 |
- |
地勢 |
- |
| 接道状況 |
北約4m |
| セットバック |
- |
私道負担面積 |
- |
主要採光面 |
南 |
| 建ぺい率 |
60% |
容積率 |
200% |
| 設備 |
追焚機能付/浴室乾燥機/洗髪洗面化粧台/温水洗浄便座(ウォシュレット)/トイレ:2室/床暖房/クローゼット/システムキッチン/対面式キッチン/フローリング/全居室フローリング/バルコニー/TVモニタ付インタホン/ペアガラス/公営水道/都市ガス/下水道 |
| 条件 |
- |
| 備考 |
- |
| お問い合わせ番号 |
- |
取引形態 |
売主 |
※各種情報と現状に差異がある場合は、現状優先となります。