東京都板橋区相生町の物件詳細
相生町 7,498・8,498万円
限定2棟
南道路に面した日当たり良好な立地に限定2棟です。
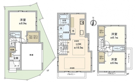
LDKは18帖超あり、床暖房が標準装備です。豊富な収納もみりょくですよ。
休日はもちろん平日のご案内も承っておりますので、お気軽にお問い合わせください。
-
-
-
南道路につき日当たり良好!
3階建て3LDK!
足元ぽかぽか床暖房付!
最寄り駅 徒歩 住所 |
価格 |
面積 間取り |
種別 完成月 |
都営三田線 『蓮根』駅 徒歩12分
東京都板橋区相生町
|
7498万円 ~ 8498万円 |
建:90.93㎡ ~ 113.54㎡
土:70.12㎡ ~ 72.25㎡
間取り:3LDK |
新築一戸建て
2026年5月 |
03-5916-0485
【営業時間】
平日 9:30~19:30、土日祝 9:00~19:30 毎週水曜日、第1・3・5火曜日

| 所在地 |
東京都板橋区相生町  |
| 交通 |
都営三田線 『蓮根』駅 徒歩12分
|
| 価格 |
7498万円 ~ 8498万円 |
| 駐車場 |
敷地内に有(1台分) |
| 間取り |
3LDK |
建物面積/土地面積 |
建:90.93㎡ ~ 113.54㎡ 土:70.12㎡ ~ 72.25㎡ |
間取り詳細 |
- |
| 種別/構造 |
新築一戸建て/木造 |
完成月 |
2026年5月 |
引渡し |
相談 |
| 総戸数/販売戸数 |
- 戸/2 戸 |
土地権利 |
所有権 |
| 借地料 |
- 円 |
都市計画 |
- |
用途地域 |
第一種住居地域 |
| 地目 |
- |
地勢 |
- |
| 接道状況 |
南4m・東4m |
| セットバック |
- |
私道負担面積 |
- |
主要採光面 |
南 |
| 建ぺい率 |
60% |
容積率 |
200% |
| 設備 |
追焚機能付/浴室乾燥機/洗髪洗面化粧台/温水洗浄便座(ウォシュレット)/トイレ:2室/床暖房/クローゼット/システムキッチン/対面式キッチン/フローリング/全居室フローリング/バルコニー/TVモニタ付インタホン/ペアガラス/公営水道/都市ガス/下水道 |
| 条件 |
角地 |
| 備考 |
- |
| お問い合わせ番号 |
- |
取引形態 |
仲介 |
※各種情報と現状に差異がある場合は、現状優先となります。