東京都板橋区中板橋の物件詳細
中板橋 7,180万円
限定1棟
南面道路につき日当たり良好!中板橋駅徒歩6分と近く、近隣には商業施設も多く大変便利な立地です。
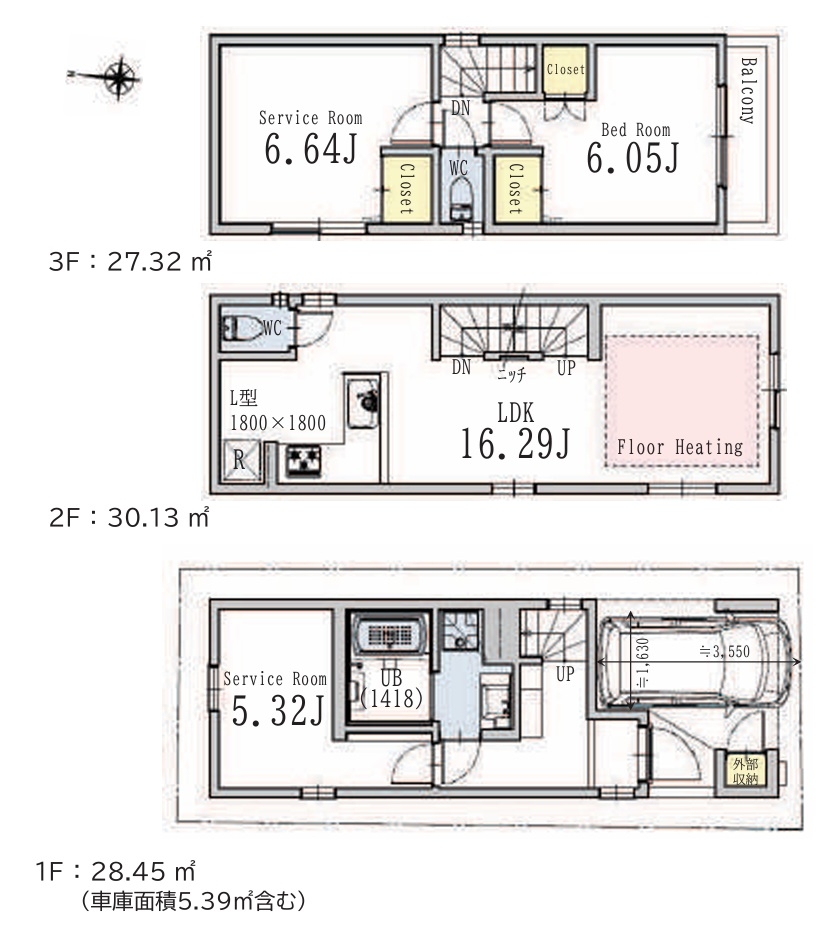
3階建て3LDKの間取りには床暖房や食洗器など充実の仕様設備が標準装備です。
休日はもちろん平日のご案内も承っておりますので、お気軽にお問い合わせください。
-
-
-
駅近!徒歩6分!
南道路につき日当たり良好!
3階建て3LDK!
最寄り駅 徒歩 住所 |
価格 |
面積 間取り |
種別 完成月 |
東武東上線 『中板橋』駅 徒歩6分
東京都板橋区中板橋
|
7180万円 |
建:85.90㎡
土:46.22㎡
間取り:3LDK |
新築一戸建て
2026年5月 |
03-5916-0485
【営業時間】
平日 9:30~19:30、土日祝 9:00~19:30 毎週水曜日、第1・3・5火曜日
  |
|
|
間取図 |
|
|

| 所在地 |
東京都板橋区中板橋  |
| 交通 |
東武東上線 『中板橋』駅 徒歩6分
/東武東上線 『大山』駅 徒歩12分
|
| 価格 |
7180万円 |
| 駐車場 |
敷地内に有(1台分) |
| 間取り |
3LDK |
建物面積/土地面積 |
建:85.90㎡ 土:46.22㎡ |
間取り詳細 |
- |
| 種別/構造 |
新築一戸建て/木造 |
完成月 |
2026年5月 |
引渡し |
- |
| 総戸数/販売戸数 |
- 戸/1 戸 |
土地権利 |
所有権 |
| 借地料 |
- 円 |
都市計画 |
- |
用途地域 |
第一種住居地域 |
| 地目 |
- |
地勢 |
- |
| 接道状況 |
南約6m |
| セットバック |
- |
私道負担面積 |
- |
主要採光面 |
南 |
| 建ぺい率 |
60% |
容積率 |
300% |
| 設備 |
追焚機能付/浴室乾燥機/洗髪洗面化粧台/温水洗浄便座(ウォシュレット)/トイレ:2室/床暖房/クローゼット/システムキッチン/対面式キッチン/フローリング/全居室フローリング/バルコニー/TVモニタ付インタホン/ペアガラス/公営水道/都市ガス/下水道 |
| 条件 |
- |
| 備考 |
- |
| お問い合わせ番号 |
- |
取引形態 |
仲介 |
※各種情報と現状に差異がある場合は、現状優先となります。