東京都練馬区平和台の物件詳細
平和台2丁目 7,880万円~8,780万円
全3棟
有楽町線・副都心線・東上線が利用可能なアクセス良好な立地!
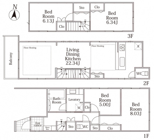
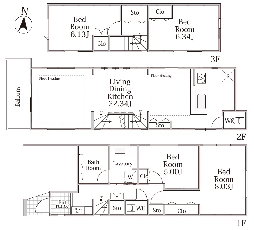
全棟ゆったりとした間取りが魅力な3階建て4LDKです。LDKは20帖以上あり床暖房も付いていますので暖かな空間で家族団らんできますね。
休日はもちろん平日のご案内も承っておりますのでお気軽にお問い合わせください。
-
-
-
3路線2駅利用可!
大型3階建て4LDK!
足元ぽかぽか床暖房付!
最寄り駅 徒歩 住所 |
価格 |
面積 間取り |
種別 完成月 |
東京メトロ有楽町線 『平和台』駅 徒歩10分
東京都練馬区平和台
|
7880万円 ~ 8780万円 |
建:110.90㎡ ~ 122.33㎡
土:75.64㎡ ~ 83.48㎡
間取り:4LDK |
新築一戸建て
2026年1月 |
03-5916-0485
【営業時間】
平日 9:30~19:30、土日祝 9:00~19:30 毎週水曜日、第1・3・5火曜日

| 所在地 |
東京都練馬区平和台  |
| 交通 |
東京メトロ有楽町線 『平和台』駅 徒歩10分
/東京メトロ副都心線 『平和台』駅 徒歩10分
/東武東上線 『東武練馬』駅 徒歩17分
|
| 価格 |
7880万円 ~ 8780万円 |
| 駐車場 |
敷地内に有(1台分) |
| 間取り |
4LDK |
建物面積/土地面積 |
建:110.90㎡ ~ 122.33㎡ 土:75.64㎡ ~ 83.48㎡ |
間取り詳細 |
- |
| 種別/構造 |
新築一戸建て/木造 |
完成月 |
2026年1月 |
引渡し |
相談 |
| 総戸数/販売戸数 |
- 戸/3 戸 |
土地権利 |
所有権 |
| 借地料 |
- 円 |
都市計画 |
- |
用途地域 |
第一種低層住居専用地域 |
| 地目 |
宅地 |
地勢 |
- |
| 接道状況 |
西約4m |
| セットバック |
- |
私道負担面積 |
- |
主要採光面 |
西 |
| 建ぺい率 |
60% |
容積率 |
200% |
| 設備 |
追焚機能付/浴室乾燥機/洗髪洗面化粧台/温水洗浄便座(ウォシュレット)/トイレ:2室/床暖房/クローゼット/システムキッチン/対面式キッチン/フローリング/全居室フローリング/バルコニー/TVモニタ付インタホン/ペアガラス/公営水道/都市ガス/下水道 |
| 条件 |
- |
| 備考 |
- |
| お問い合わせ番号 |
- |
取引形態 |
仲介 |
※各種情報と現状に差異がある場合は、現状優先となります。