埼玉県和光市白子3丁目の物件詳細
白子3丁目 6,098・6,298万円
最終2棟
東南角地を含む最終2棟です。
ゆったりとした大型2階建て4LDKの間取りには食洗機や浴室換気乾燥機なども標準装備です。
休日はもちろん平日のご案内も承っておりますので、お気軽にお問い合わせください。
-
-
-
3路線3駅利用可!
大型2階建て4LDK!
東南角地を含む最終2棟!
最寄り駅 徒歩 住所 |
価格 |
面積 間取り |
種別 完成月 |
東武東上線 『成増』駅 徒歩22分
埼玉県和光市白子3丁目
|
6098万円 ~ 6298万円 |
建:101.03㎡ ~ 104.11㎡
土:100.00㎡
間取り:4LDK |
新築一戸建て
2025年12月 |
03-5916-0485
【営業時間】
平日 9:30~19:30、土日祝 9:00~19:30 毎週水曜日、第1・3・5火曜日
  |
|
|
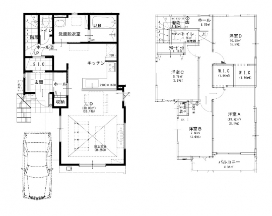
間取図 |
|
|

所在地 |
埼玉県和光市白子3丁目  |
交通 |
東武東上線 『成増』駅 徒歩22分
/東武東上線 『和光市』駅 徒歩23分
/東京メトロ有楽町線 『地下鉄成増』駅 徒歩24分
|
価格 |
6098万円 ~ 6298万円 |
駐車場 |
敷地内に有(1台分) |
間取り |
4LDK |
建物面積/土地面積 |
建:101.03㎡ ~ 104.11㎡ 土:100.00㎡ |
間取り詳細 |
- |
種別/構造 |
新築一戸建て/木造 |
完成月 |
2025年12月 |
引渡し |
相談 |
総戸数/販売戸数 |
- 戸/2 戸 |
土地権利 |
所有権 |
借地料 |
- 円 |
都市計画 |
- |
用途地域 |
第一種中高層住居専用地域 |
地目 |
- |
地勢 |
- |
接道状況 |
南約6m・東約6m |
セットバック |
- |
私道負担面積 |
- |
主要採光面 |
南 |
建ぺい率 |
60% |
容積率 |
200% |
設備 |
追焚機能付/浴室乾燥機/洗髪洗面化粧台/温水洗浄便座(ウォシュレット)/トイレ:2室/クローゼット/システムキッチン/対面式キッチン/フローリング/バルコニー/TVモニタ付インタホン/ペアガラス/公営水道/都市ガス/下水道 |
条件 |
- |
備考 |
- |
お問い合わせ番号 |
- |
取引形態 |
仲介 |
※各種情報と現状に差異がある場合は、現状優先となります。