物件詳細お気に入り物件
東京都板橋区徳丸4丁目 7580万円
徳丸4丁目 7,580万円
限定1棟
限定1棟

外観

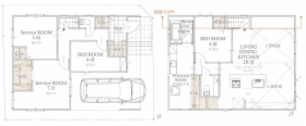
間取図

居室

キッチン
※指でスライドすると写真が切り替わります。
■この物件のポイント
大型2階建て4LDK!
水回り集中設計!
充実のパウダールーム!
大型2階建て4LDK!
水回り集中設計!
充実のパウダールーム!
| 所在地 | |||||
|---|---|---|---|---|---|
| 交通 | 東武東上線 『東武練馬』駅 徒歩13分 | ||||
| 価格 | 7580万円 | ||||
| 坪単価 | - | ㎡単価 | - | ||
| 駐車場 | 敷地内に有(1台分) | ||||
| 間取り | 4LDK | 間取り詳細 | - | ||
| 建物面積 | 117.85㎡ | 土地面積 | 87.17㎡ | ||
| 種別 | 新築一戸建て | 構造 | 木造 | ||
| 完成月 | 2026年2月 | 引渡し | 相談 | ||
| 土地権利 | 所有権 | ||||
| 総戸数 | - 戸 | 販売戸数 | 1 戸 | ||
| 借地料 | - 円 | ||||
| 都市計画 | - | 用途地域 | 第一種住居地域 | ||
| 地目 | - | 地勢 | - | ||
| 接道状況 | 東約4m | ||||
| セットバック | - | ||||
| 私道負担面積 | - | 主要採光面 | 東 | ||
| 建ぺい率 | 60% | 容積率 | 200% | ||
| 設備 | 追焚機能付/浴室乾燥機/温水洗浄便座(ウォシュレット)/トイレ:2室/クローゼット/ウォークインクローゼット/システムキッチン/対面式キッチン/フローリング/全居室フローリング/バルコニー/TVモニタ付インタホン/ペアガラス/公営水道/下水道 | ||||
| 条件 | - | ||||
| 備考 | - | ||||
| お問合せ番号 | - | ||||
| 取引形態 | 仲介 | 業者付け | - | ||
