物件詳細お気に入り物件
東京都板橋区前野町4丁目 6180万円
前野町4丁目 6,180万円
限定1棟
限定1棟

外観

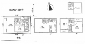
間取図
※指でスライドすると写真が切り替わります。
■この物件のポイント
南道路につき日当たり良好!
3階建て3LDK!
人気のルーフバルコニー!
南道路につき日当たり良好!
3階建て3LDK!
人気のルーフバルコニー!
| 所在地 | |||||
|---|---|---|---|---|---|
| 交通 | 都営三田線 『志村坂上』駅 徒歩9分 | ||||
| 価格 | 6180万円 | ||||
| 坪単価 | - | ㎡単価 | - | ||
| 駐車場 | 敷地内に有(1台分) | ||||
| 間取り | 3LDK | 間取り詳細 | - | ||
| 建物面積 | 97.60㎡ | 土地面積 | 48.49㎡ | ||
| 種別 | 新築一戸建て | 構造 | 木造 | ||
| 完成月 | 2026年1月 | 引渡し | 相談 | ||
| 土地権利 | 所有権 | ||||
| 総戸数 | - 戸 | 販売戸数 | 1 戸 | ||
| 借地料 | - 円 | ||||
| 都市計画 | - | 用途地域 | 第一種住居地域 | ||
| 地目 | - | 地勢 | - | ||
| 接道状況 | 南7.5m・北4m | ||||
| セットバック | - | ||||
| 私道負担面積 | - | 主要採光面 | 南 | ||
| 建ぺい率 | 60% | 容積率 | 200% | ||
| 設備 | 追焚機能付/浴室乾燥機/洗髪洗面化粧台/温水洗浄便座(ウォシュレット)/トイレ:2室/床暖房/クローゼット/システムキッチン/対面式キッチン/フローリング/全居室フローリング/バルコニー/ルーフバルコニー/TVモニタ付インタホン/ペアガラス/公営水道/都市ガス/下水道 | ||||
| 条件 | - | ||||
| 備考 | - | ||||
| お問合せ番号 | - | ||||
| 取引形態 | 仲介 | 業者付け | - | ||

